광고
광고
광고
광고

건축 소방의 이해- XXⅦ

지하층의 구조와 선큰

광고
부산소방재난본부 안성호 | 기사입력 2024/07/01 [09:00]

건축 소방의 이해- XXⅦ

지하층의 구조와 선큰

부산소방재난본부 안성호 | 입력 : 2024/07/01 [09:00]

선큰(Sunken) 

건축법령에서는 ‘선큰’이라는 용어를 ‘지하층과 피난층 사이의 개방공간’으로 규정하고 있다. 지하층을 일정한 용도로 사용하는 경우에는 각 실에 있는 자가 지하층 각 실에서 옥외계단 또는 경사로 등을 이용해 피난층으로 대피할 수 있도록 천장이 개방된 외부 공간을 설치해야 한다. 

 

또 초고층 관련 법령에서는 선큰의 정의를 ‘지표 아래에 있고 외기(外氣)에 개방된 공간으로서 건축물 사용자 등의 보행ㆍ휴식 및 피난 등에 제공되는 공간을 말한다’고 규정한다.

 

 

‘지하층과 피난층 사이의 개방공간 설치’에 대해서는 건축법령에서 세부적인 설치기준을 규정하지 않는다. 따라서 일반적으로 천장이 없는 옥외 가든(garden)의 개념으로 설치하고 있다. 지하 개방공간을 ‘초고층재난관리법’에서 규정하는 선큰의 구조로 설치할 땐 어떤 방식으로 설치해도 무방하다.

 

선큰의 설치대상

‘건축법’ 시행령에서 규정하는 지하 개방공간을 선큰의 구조로 설치한다면 이는 반드시 설치해야 하는 시설에 해당한다. ‘초고층재난관리법’에서는 지하층을 일정한 용도로 사용할 때 그 지하층에 피난안전구역을 설치하도록 규정한다. 

 

그러나 지하층의 피난안전구역을 법령 기준에 적합하도록 설치하는 게 평면 구조 등 여러 환경적인 여건상 어려울 수 있다. 이때 선큰의 구조로 설치하면 피난안전구역의 설치가 면제된다.

 

법적 근거 설치대상 비고
‘건축법’ 시행령 제37조(지하층과 피난층 사이의 개방공간 설치) 바닥면적의 합계가 3천㎡ 이상인 공연장ㆍ집회장ㆍ관람장 또는 전시장을 지하층에 설치하는 경우 선큰 설치
‘초고층 및 지하연계 복합건축물 재난관리에 관한 특별법’ 시행령 제14조(피난안전구역 설치기준 등) 초고층 건축물 등의 지하층이 건축물 안에 문화 및 집회시설, 판매시설, 운수시설, 업무시설, 숙박시설, 위락(慰樂)시설 중 유원시설업(遊園施設業)의 시설 또는 종합병원, 요양병원 용도의 시설이 하나 이상 있는 건축물

피난안전구역 또는 선큰 설치

 

 

선큰의 설치기준

선큰 면적의 설치기준은 다음과 같다.

 

【면적의 설치기준】

다음 각 목의 구분에 따라 용도(‘건축법’ 시행령 별표 1에 따른 용도를 말한다.)별로 산정한 면적을 합산한 면적 이상으로 설치할 것

가. 문화 및 집회시설 중 공연장, 집회장 및 관람장은 해당 면적의 7% 이상

나. 판매시설 중 소매시장은 해당 면적의 7% 이상

다. 그 밖의 용도는 해당 면적의 3% 이상

 

선큰의 구조는 다음 기준에 따라 설치해야 한다.

 

【구조의 설치기준】
가. 지상 또는 피난층(직접 지상으로 통하는 출입구가 있는 층 및 피난안전구역)으로 통하는 너비 1.8m 이상의 직통계단을 설치하거나 너비 1.8m 이상 및 경사도 12.5% 이하의 경사로를 설치할 것
나. 거실 바닥면적 100㎡마다 0.6m 이상을 거실에 접하도록 하고 선큰과 거실을 연결하는 출입문의 너비는 거실 바닥면적 100㎡마다 0.3m로 산정한 값 이상으로 할 것

 

선큰에 설치해야 할 설비는 선큰의 구조가 옥외에 개방된 특수성으로 ‘침수 방지시설’과 거실에서의 피난경로 상의 ‘제연설비’다. 이 두 가지 모두 중요한 역할을 한다고 할 수 있다.

 

【설비의 설치기준】
가. 빗물에 의한 침수 방지를 위하여 차수판(遮水板), 집수정(물저장고), 역류방지기를 설치할 것
나. 선큰과 거실이 접하는 부분에 제연설비[드렌처(수막) 설비 또는 공기조화설비와 별도로 운용하는 제연설비를 말한다]를 설치할 것. 다만 선큰과 거실이 접하는 부분에 설치된 공기조화설비가 ‘소방시설 설치 및 관리에 관한 법률’에 따른 화재안전기준에 맞게 설치되어 있고 화재 발생 시 제연설비 기능으로 자동 전환되는 경우에는 제연설비를 설치하지 않을 수 있다.

 

특히 선큰은 지하층에 설치되는 것으로서 외기와 개방돼 있어 집중호우 시 다량의 빗물 등이 유입돼 지하 거실이 침수되는 등 재난 발생 우려가 크다. 따라서 반드시 차수판 등의 유입 방지시설과 집수정 등 옥외 배출 설비의 정상작동이 중요하다. 

 

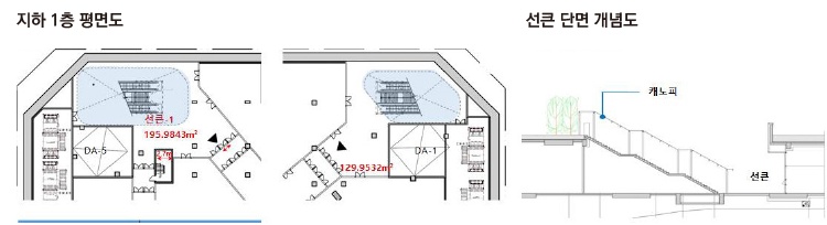
【선큰의 설치구조 심의 사례】
검토사항 조치결과

2. 지하 1층에 설치된 선큰의 설치 기준 적정 여부 검토

- 빗물에 의한 침수 방지를 위한 차수판, 집수정, 역류방지기의 설치 여부

- 선큰 상부의 구조 검토

- ‘초고층 및 지하연계복합건축물 재난관리에 관한 특별법’ 시행령에 따라 선큰 면적은 필요 면적 이상으로 적정하게 설치 계획하였음.

- 지하 2층에는 선큰 우수 펌프실을 설치 계획하고 선큰 에스컬레이터 상부에 지붕을 설치, 출입구에는 차수판을 계획하였음.

- 출입구 이외의 1층 선큰 구간은 난간이 1200㎜ 높이로 계획하여 빗물에 의한 침수 대비를 하겠음.

 

 

구분 선큰 설치면적

판매시설: 2830.7226×0.07=198.1506㎡

근생시설: 4001.9104×0.03=120.0574㎡

필요면적: 318.208㎡

설치면적: 195.9843+129.9532=325.9375㎡

필요면적 318.208㎡
선큰-1 195.9843㎡
선큰-2 129.9532㎡
설치종합 325.9375㎡

 

 

소방법령에서의 지하 개방공간 유지ㆍ관리

소방법령에서의 규정 적용에서 ‘건축법’ 제53조(지하층)는 ‘소방시설 설치 및 관리에 관한 법률’ 제6조(건축허가등의 동의 등) 제⑤항의 규정에 따른 ‘방화시설’로 분류된다. 

 

‘건축법’ 시행령 제37조(지하층과 피난층 사이의 개방공간 설치)의 규정은 ‘건축법’ 제49조(건축물의 피난시설 및 용도제한 등) 제①항 규정의 하위법령에 따라 설치되는 ‘피난시설’로 분류할 수 있다. 

 

그러나 건축법령에는 지하 개방공간의 설치기준에 대한 세부 규정이 없다. 초고층법령에서 선큰의 세부 설치기준을 규정하고 있는데 대부분 이 기준을 준용해서 설계한다고 보면 된다. 

 

여기서 검토돼야 하는 건 ‘건축법’ 시행령 제37조(지하층과 피난층 사이의 개방공간 설치) 규정에 따라 설치되는 지하 개방공간은 피난시설로서 소방법령에서의 관리위반 시 ‘소방시설 설치 및 관리에 관한 법률’ 제16조(피난시설, 방화구획 및 방화시설의 관리) 규정을 적용할 수 있다는 점이다. 

 

하지만 초고층법령에 의해 설치해야 하는 피난안전구역을 대체해서 설치하는 선큰은 ‘건축법’의 적용을 받아 설치하는 게 아니다. 그러므로 관리위반에 대한 행정처분 시 근거 법령이 다름을 구분할 수 있어야 한다. 

 

즉 초고층법령에 따라 설치된 선큰은 위 소방법령 규정의 위반을 적용하기보다 조치 명령의 불이행에 대한 행정처분이 가능할 것이다. 

 

부산소방재난본부_ 안성호 : gull1999@korea.kr

 

<본 내용은 소방 조직의 소통과 발전을 위해 베테랑 소방관 등 분야 전문가들이 함께 2019년 5월 창간한 신개념 소방전문 월간 매거진 ‘119플러스’ 2024년 7월 호에서도 만나볼 수 있습니다.>

건축 소방의 이해 관련기사목록
광고
119talktalk
[119talktalk] “지휘관은 계급이 아니라 경험이 만든다”
1/5
광고
광고
광고
광고
광고
광고
광고
광고
광고
광고