광고
광고
광고
광고

건축 소방의 이해- XXX

고층건축물의 피난안전구역 등

광고
부산소방재난본부 안성호 | 기사입력 2024/10/02 [10:00]

건축 소방의 이해- XXX

고층건축물의 피난안전구역 등

부산소방재난본부 안성호 | 입력 : 2024/10/02 [10:00]

초고층재난관리법령에서 규정하는 피난안전구역

초고층재난관리법령에서 초고층 건축물 등의 관리 주체는 그 건축물 등에 재난 발생 시 상시근무자나 거주자, 이용자가 대피할 수 있는 피난안전구역을 설치ㆍ운영해야 한다. 또 피난안전구역의 기능과 성능에 지장을 초래하는 폐쇄ㆍ차단 등의 행위를 해선 안 된다고 규정하고 있다.

 

위반 시 벌칙 

◈ 초고층 및 지하연계 복합건축물 재난관리에 관한 특별법 제29조(벌칙)

제18조를 위반하여 피난안전구역을 설치ㆍ운영하지 아니한 자 또는 폐쇄ㆍ차단 등의 행위를 한 자는 5년 이하의 징역 또는 5천만원 이하의 벌금에 처한다.

 

동법에서 피난안전구역 설치대상에 대한 구분은 규정만 보면 쉽게 이해하기 어렵다.

 

초고층 건축물이 아니더라도 ‘지하연계 복합건축물’이 되면 이 건축물의 지상층 또는 지하층에 별도의 피난안전구역을 설치해야 하는데 이는 건축법령상의 고층건축물 지상층에 설치하는 피난안전구역의 설치와는 조금 다른 부분이 있기 때문이다. 

 

따라서 ‘초고층 및 지하연계 복합건축물 재난관리에 관한 특별법’에서 규정하는 피난안전구역에 대해서는 좀 더 깊은 이해가 필요하다.

 

초고층재난관리법령에서의 규정 검토

초고층재난관리법령에서 규정하는 피난안전구역은 층수와 지하연계 복합건축물 해당 여부, 지하층의 특정 용도 등에 따라 설치대상 여부가 결정된다.

 

【초고층재난관리법령에서의 피난안전구역 설치기준】
초고층 건축물

피난층 또는 지상으로 통하는 직통계단과 직접 연결되는 피난안전구역을 지상층으로부터 최대 30개 층마다 1개소 이상 설치하여야 한다. 

※ 건축법령 규정의 준용

30층 이상 49층 이하인 지하연계 복합건축물

피난층 또는 지상으로 통하는 직통계단과 직접 연결되는 피난안전구역을 해당 건축물 전체 층수의 2분의 1에 해당하는 층으로부터 상하 5개층 이내에 1개소 이상 설치하여야 한다. 다만, 국토교통부령으로 정하는 기준에 따라 피난층 또는 지상으로 통하는 직통계단을 설치하는 경우에는 그러하지 아니하다.

※ (설치 제외) 직통계단 및 계단참의 너비: 공동주택: 120㎝ 이상, 공동주택 외: 150㎝ 이상

16층 이상 29층 이하인 지하연계 복합건축물 지상층별 거주밀도가 제곱미터당 1.5명을 초과하는 층은 해당 층의 사용형태별 면적의 합의 10분의 1에 해당하는 면적을 피난안전구역으로 설치할 것
초고층 건축물 또는 지하연계 복합건축물의 지하층이 법 제2조제2호 나목의 용도로 사용되는 경우

해당 지하층에 별표 2의 피난안전구역 면적 산정기준에 따라 피난안전구역을 설치하거나 선큰을 설치할 것

※ 법 제2조제2호나목의 용도

문화 및 집회시설, 판매시설, 운수시설, 업무시설, 숙박시설, 위락(慰樂)시설 중 유원시설업(遊園施設業)의 시설, 종합병원, 요양병원

 

‘초고층재난관리법’에서 규정하는 피난안전구역은 지상층뿐 아니라 지하층에도 설치해야 한다. 따라서 세부적으로 구분한 후 이해해야 한다.

 

피난안전구역 설치 구조

피난안전구역의 구조와 시설의 설치기준 역시 건축법령상의 고층건축물 지상층과 초고층재난관리법령상의 지하연계 복합건축물 지상층 일부분 또는 지하층에 설치하는 피난안전구역의 설치기준을 다르게 적용하고 있다. 먼저 건축법령에서 규정하는 피난안전구역의 기준을 보면 다음과 같다.

 

1. 피난안전구역의 전용층 설치

고층건축물의 지상층에 설치하는 피난안전구역은 해당 건축물의 1개 층을 전용의 대피공간으로 설치해야 한다.

 

그러나 대피에 장애가 되지 않는 범위에서 기계실이나 보일러실, 전기실 등 건축설비를 설치하기 위한 공간과 같은 층에 설치할 수 있다. 이 경우 피난안전구역은 건축설비가 설치되는 공간과 내화구조로 구획해야 한다. 

 

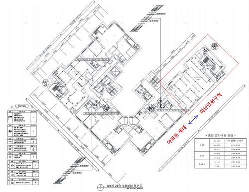
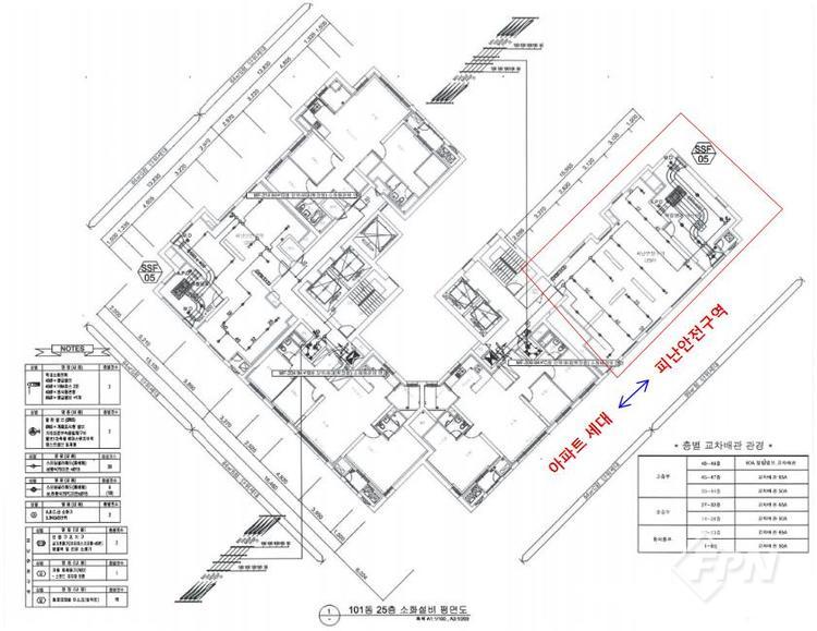
여기에서 피난안전구역이 설치되는 층에 다른 용도의 거실은 함께 설치할 수 없다는 게 중요하다.

 

▲ 피난안전구역이 거실과 같이 잘못 설계된 사례


즉 거실이라 하면 거주ㆍ작업 등을 위한 공간으로서 특성상 화재 발생 우려가 있다. 만약 그 층에 화재가 발생하면 상부층의 피난자들이 화재 층으로 피난할 수 있다. 따라서 원천적으로 화재위험요소를 제거한 안전한 대피공간 확보가 목적이라고 생각하면 된다.

▲ 피난안전구역 내의 전기실 설치 심의 사례

 

2. 트랜스퍼(Transfer) 구조의 특별피난계단

피난안전구역에 연결되는 특별피난계단은 피난안전구역을 거쳐 상ㆍ하층으로 갈 수 있는 구조로 설치해야 한다. 이런 방식을 트랜스퍼 구조의 특별피난계단이라고 한다. 

 

상부층 재실자들이 특별피난계단의 계단실을 통해 지상층으로 피난할 때 피난안전구역의 위치를 인지하지 못하고 하부로 이동하더라도 자연스레 피난안전구역에 출입하는 구조로 설치하는 걸 뜻한다. ‘풀 프루프(Fool Proof)’의 개념을 적용한 안전한 공간으로의 대피 유도계획으로 생각하면 된다. 

 

▲ 피난안전구역의 특별피난계단 구조 심의 사례


계단의 동선을 변경함으로써 직통계단에 의한 연돌 효과(Stack Effect)를 방지하기 위한 목적도 있다고 할 수 있다.

부산소방재난본부_ 안성호 : gull1999@korea.kr

 

<본 내용은 소방 조직의 소통과 발전을 위해 베테랑 소방관 등 분야 전문가들이 함께 2019년 5월 창간한 신개념 소방전문 월간 매거진 ‘119플러스’ 2024년 10월 호에서도 만나볼 수 있습니다.>

건축 소방의 이해 관련기사목록
광고
119talktalk
[119talktalk] “지휘관은 계급이 아니라 경험이 만든다”
1/5
광고
광고
광고
광고
광고
광고
광고
광고
광고
광고