[FOCUS] “소방은 현장이 최우선”… 경북소방, 지휘역량강화센터 운영 ‘START’연면적 1962㎡ 규모, 2층 단독 건물에 오롯이 교육시설만 채워
|
![]() |
“선착대장!! 여기 진압 1대!! 현재 화세가 강하고 강의실로 연소 확대 중!!
추가 소방력 필요!!”
“소방관 아저씨!! 1학년 n반 담임입니다. 우리 반 아이 두 명이 보이지 않아요…
빨리 찾아주세요… 이름은 김OO, 박OO입니다”
무더운 여름날 오후 경북소방학교 지휘역량강화센터를 찾았다. 이곳에선 현장지휘관을 대상으로 VR 시뮬레이션 훈련이 한창이다. 에어컨이 풀가동되고 있었지만 그 바람이 무색할 정도로 훈련장 안의 열기는 후끈했다.
교육에 참여 중인 현장지휘관들의 이마엔 땀방울이 송골송골 맺혔다. 그들이 내뱉는 다급한 무전 소리는 실제 화재 현장을 방불케 할 정도로 긴급했다.
지난 7월 10일 경북소방은 서울과 중앙, 경기, 광주에 이어 다섯 번째로 지휘역량강화센터(ICTC, Incident Command Training Center)의 문을 열었다.
ICTC는 재난 현장에 필요 인원과 자원 등을 효율적으로 운용하는 방법을 배우는 지휘관 역량 강화 훈련 시설이다. 가상현실(VR) 기반의 시뮬레이션을 통해 다양한 재난 현장을 실제처럼 경험하며 훈련할 수 있는 게 특징이다.
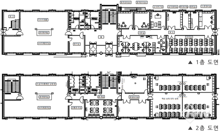
경북소방학교에 자리 잡은 ICTC는 연면적 1962㎡ 규모다. 기존 소방학교의 제1생활관을 리모델링해 지상 2개 층으로 지어졌다. 내부는 ▲지휘훈련실 ▲작전회의실 ▲원격강의실 ▲긴급구조통제단 훈련실 ▲상황관리실 ▲전략토의실 등으로 구성됐다.
![]() ▲ 경북 ICTC 층별 배치도 |
![]() |
“현장지휘관의 능력과 재난현장의 피해 규모는 반비례한다”
현장지휘관의 능력에 따라 재난 현장에서의 피해 규모가 결정될 수 있다. 지휘관 판단 하나하나에 많은 결과가 달라질 수 있기 때문이다.
기술 발전은 우리 생활을 풍요롭게 해준 반면 부작용을 초래하기도 했다. 기후변화로 인한 집중호우와 폭염, 대형 산불 등과 같은 자연재난은 이제 일상이 됐다.
이에 더해 사회적 영향에 따라 갈등 고조로 나타나는 테러, 갈수록 심화되는 고령화 사회 등으로 야기되는 재난 역시 무시할 수 없는 수준이다. 고층ㆍ대형ㆍ복합화되는 시설물의 증가도 재난 양상에 큰 변화를 주고 있다.
재난에 대비하기 위해선 예방 대책도 필요하지만 무엇보다 대응조직의 역량 강화가 중요하다. 그중에서도 특히 현장지휘시스템은 핵심 요소로 꼽힌다.
재난 현장에서 나타나는 변수들은 늘 예측할 수 없는 우연성과 불확실성을 보인다. 이 때문에 현장지휘관의 빠른 판단은 해결책이 되기도, 작전을 실패로 내몰기도 한다. 경북소방이 발 빠르게 ICTC 도입한 이유가 바로 여기 있다.
“교육의 질부터 다르다”… 네 명의 퍼실레이터 운영
퍼실레이터의 사전적 의미는 교육이나 회의, 포럼 등이 원활하게 진행될 수 있도록 리딩을 담당하는 사람이다. ICTC에선 VR 운영 교관을 퍼실레이터라 부른다.
경북에 앞서 ICTC를 운영 중인 타 시도의 경우 한 명의 퍼실레이터가 VR 교육을 담당한다. 초ㆍ중급 교육과정의 경우 1회당 20명 정도의 교육생이 참여한다. 한 명의 퍼실레이터가 교육 전반을 담당하는 건 가능하지만 개인별 지휘 훈련까지 맡기엔 제약이 따를 수밖에 없다.
경북의 경우 훈련에 참여하는 초ㆍ중급 지휘관이 좀 더 현실감 있게 개인별 훈련을 병행할 수 있도록 네 명의 퍼실레이터를 운영한다.
![]() |
경북 ICTC에 따르면 교육생들의 교육은 조별로 각기 다른 임무를 번갈아 가면서 수행하는 방식이다. 퍼실레이터의 경우 조별로 배치되는데 교육생들이 최선의 판단을 할 수 있도록 이끌어 주는 역할을 맡는다.
교육을 이수한 후에는 평가가 이뤄진다. 이미 35명의 평가관 인력풀도 구축해 놓은 상태다. 내부 평가관은 현장지휘관 자격 인증자를 우선으로 평가대상자의 계급보다 높은 계급의 전ㆍ현직 소방공무원을 선임했다. 여덟 명으로 구성된 외부 평가관은 모두 심리학을 전공한 교수나 관련 자격 보유자다.
![]() |
경북지역 5개 주요 시설물 가상환경 콘텐츠 보유
지휘관의 능력을 평가하는 데 있어 재난 현장의 다양한 경험은 빼놓을 수 없는 부분이다. 문제는 대규모 재난 현장의 경험을 쌓을 기회가 흔치 않다는 점이다. 실제로 대응 1, 2단계 이상의 대규모 재난 현장을 직접 겪어본 지휘관은 그리 많지 않다.
이런 문제를 개선하기 위해 도입된 게 바로 VR 기술을 활용한 시뮬레이션 훈련이다. 재난 상황과 유사한 환경을 제공하고 교육과 훈련을 통해 다양한 경험을 쌓을 수 있어서다.
VR 시뮬레이션 훈련은 재난 현장의 복합ㆍ복잡한 상황을 시나리오로 구성해 다양하게 반영할 수 있다. 가상환경의 콘텐츠가 풍부할수록 현장지휘관에게 재난 현장의 경험을 많이 제공할 수 있는 셈이다.
![]() |
경북 ICTC는 언제든 훈련에 활용할 수 있는 29종의 콘텐츠를 보유하고 있다. 이 중 경북지역에서 대형 피해가 우려되는 안동병원과 칠곡영남물류센터, 김천코아루, 포항죽도시장, 경산CGV 등 5종은 맞춤형으로 제작한 콘텐츠다.
이 밖에 서울(10), 경기(5), 중앙(4), 광주(5) 등과도 유기적으로 협업하며 가상환경 콘텐츠를 공유하고 있다.
초ㆍ중급 현장지휘관 양성 등 7개 교육과정 운영
경북 ICTC에선 현재 ▲선착대장ㆍ지휘팀장 지휘 훈련 ▲초ㆍ중급 현장지휘관 양성 ▲초ㆍ중급 현장지휘관 인증제 평가관 인력풀 양성 ▲무전플레이어 인력풀 양성 ▲현장통신대원 전문화 교육 등 7개 교육과정을 운영 중이다.
![]() ▲ 2023년도 교육훈련 일정 |
‘선착대장 지휘 훈련’은 비합숙 사흘간의 일정으로 구성된다. 교육생들은 초기 상황평가와 지휘권 선언, VR 활용 임무 숙지 등을 교육받는다.
‘지휘팀장 지휘 훈련’ 역시 사흘간 비합숙으로 진행된다. 교육 내용은 현장지휘대 전략수집과 소방력 배치ㆍ자원관리 등이다.
‘초급 현장지휘관 양성’은 사이버 1주, 합숙 1주 등 2주간의 일정으로 진행되는 과정이다. 20명이 한 조로 참여하고 선착대장의 임무 수행에 요구되는 핵심능력을 평가한다.
‘중급 현장지휘관 양성’은 경북 ICTC에서 운영하는 교육과정 중 가장 교육 기간이 길다. 사이버 2주, 합숙 2주 등 총 4주간 진행된다. 20명이 한 조로 참여해 지휘시스템에 대한 이해도와 의사결정 능력을 평가한다.
‘초ㆍ중급 현장지휘관 인증제 평가관 인력풀 양성’은 사흘 과정이다. 현장지휘관 자격인증을 위한 자체평가관 육성을 목적으로 진행된다.
‘무전플레이어 인력풀 양성’의 경우 현장지휘관 자격인증제 운영의 평가 보조 인력인 무전플레이어 육성을 위해 진행하는 과정이다. 소방위 이하 계급을 대상으로 한다.
‘현장통신대원 전문화 교육’은 소방사부터 소방위까지 통신대원 21명이 한 조로 참여할 수 있고 사흘간 비합숙으로 진행된다.
![]() |
“현장에 강한 지휘관을 양성해 체계적인 재난 대응 시스템을 확립해 나가겠다”
[인터뷰] 김형희 경북 ICTC 센터장
“소방은 대응조직입니다. 현장이 최우선 돼야 하는 이유죠. 현장을 지휘하려면 무엇보다 경험이 풍부해야 합니다. 그래야만 사고와 피해를 모두 줄일 수 있죠. 경북 ICTC는 이제 첫 발걸음을 뗐지만 질 높은 교육을 통해 전국 최고의 현장지휘관 교육 시설로 거듭나겠습니다”
경북 ICTC에선 VR 기반 시뮬레이션을 통해 경북ㆍ대구 지역 현장지휘관을 대상으로 재난 현장에 필요한 인원과 자원 등을 효율적으로 운영하는 방법을 교육하고 있다. 실제 재난 현장과 유사한 환경을 VR로 구현해 훈련하다 보니 교육생들의 집중도 역시 매우 높은 편이다.
경북 ICTC에는 총 6명의 전담 인력이 배치돼 있다. 교육업무는 김형희 센터장의 지휘 아래 네 명의 퍼실레이터가 담당한다.
김형희 센터장은 누구보다 현장 경험이 풍부한 베테랑 소방관이다. 2003년 공채로 임관한 그는 경북 문경소방서 화재진압 대원으로 소방관 생활을 시작했다.
이후 2009년 중앙119구조대로 전출된 그는 2009년 인도네시아 지진, 2010년 아이티 지진, 2011년 일본 대지진, 2013년 필리핀 태풍 등 네 차례에 걸쳐 국제출동을 경험했다.
그는 가장 기억에 남는 현장으로 일본 대지진을 꼽는다. 중앙119구조대를 포함해 우리나라에서만 총 108명의 현장 대원이 파견됐고 수색을 통해 시신 18구를 수습하는 성과를 거뒀다.
“더는 우리나라도 지진 등 자연재해에 안전지대가 아닙니다. 따라서 센터장으로 근무하게 된 지금 국제출동의 경험은 너무나 소중합니다. 당시의 경험을 토대로 ICTC를 찾는 교육생들에게 좀 더 많은 걸 전할 수 있기 때문입니다”
현장 경험뿐만 아니라 김 센터장은 행정 분야에서도 두각을 나타냈던 인물이다. 2017년 4월 소방청으로 자리를 옮긴 그는 2021년 4월까지 4년간 청 내 주요 부서를 돌며 좋은 성과를 올렸다.
“경북소방의 초대 ICTC 센터장으로 근무하게 돼 매우 영광입니다. 사실 4년간 소방청에서 일할 당시엔 현장이 매우 그리웠는데 센터장으로 오고 나니 소방청에서 보고 배운 행정 업무가 센터 운영에 큰 도움이 되네요”
경북 ICTC에는 다른 지역 센터와 차별성이 있다. 바로 건물 내부가 오롯이 교육과 관련된 시설로만 채워져 있다는 점이다.
“실제로 다른 지역 센터의 경우 건물 내부에 타 부서나 교육과 관련 없는 시설이 같이 들어선 경우가 많습니다. 이는 교육의 집중도와도 크게 연결될 수 있는 문제죠. 퍼실레이터를 네 명이나 운영하고 있다는 것도 우리만의 장점입니다”
아직 시작 단계지만 김형희 센터장의 머릿속엔 이미 큰 그림이 그려져 있다. 초ㆍ중급 현장지휘관 교육을 넘어 실제 재난 현장을 가정한 관계기관 합동훈련을 이곳 ICTC에서 진행하는 거다. 이에 더해 산불과 풍수해, 지진 등 자연재해 훈련까지도 진행할 계획을 세우고 있다.
“앞으로 경북 ICTC는 경북ㆍ대구 지역의 현장지휘관을 양성하는 소중한 요람이 될 겁니다. VR 시뮬레이션 등을 통해 지휘관들이 재난에 대한 다양한 경험을 쌓고 현장에서의 판단과 명령의 무게를 가볍게 여기지 않도록 교육에 최선을 다하겠습니다”
신희섭 기자 ssebi79@fpn119.co.kr
<본 내용은 소방 조직의 소통과 발전을 위해 베테랑 소방관 등 분야 전문가들이 함께 2019년 5월 창간한 신개념 소방전문 월간 매거진 ‘119플러스’ 2023년 9월 호에서도 만나볼 수 있습니다.>
